Project Info:
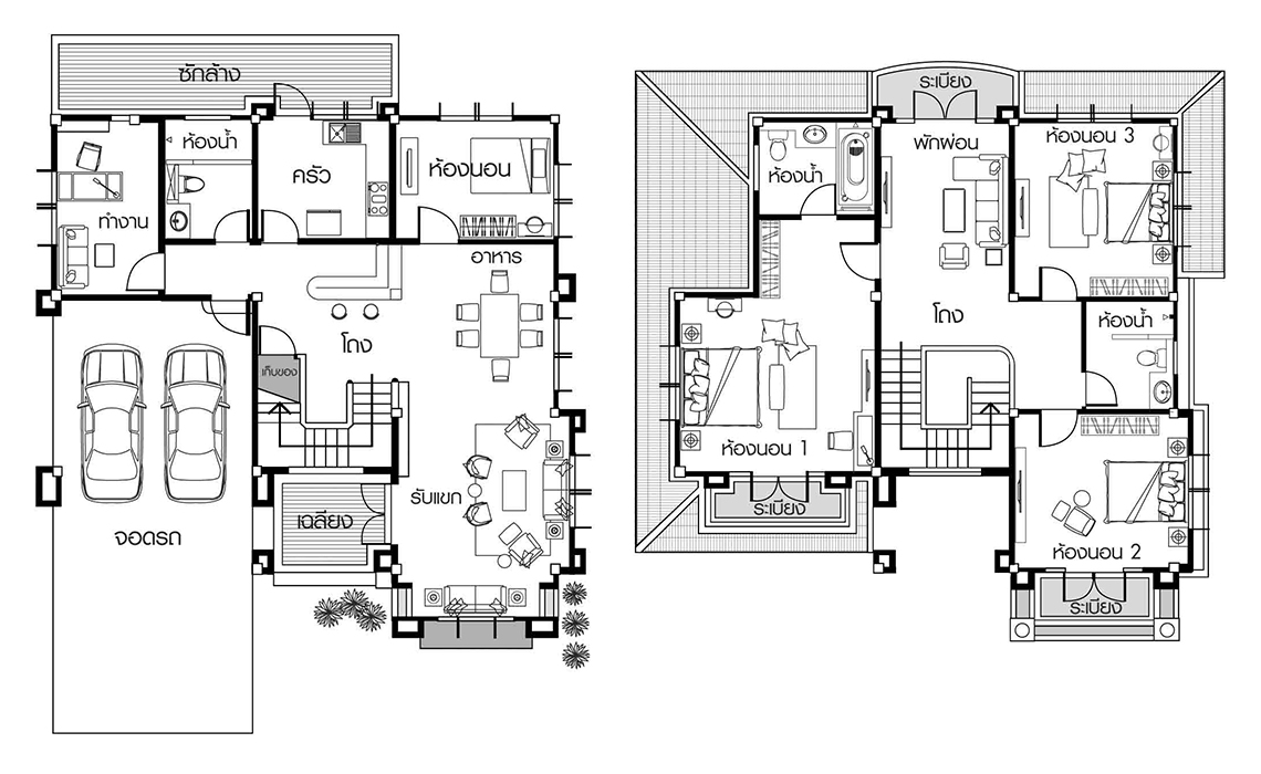
ขนาดที่ดินกว้าง 17.50 ลึก 20.00 เมตร
4 ห้องนอน 3 ห้องน้ำ จอดรถ 2 คัน
พื้นที่ใช้สอย 268 ตร.ม.
รูปทรงสวยงามให้ความรู้สึกร่มรื่นเย็นสบาย
เฉลียงด้านหน้ากว้างขวาง โดดเด่น มีเอกลักษณ์ด้วยซุ้มทางเข้าที่สูงโปร่ง เข้าสู่ภายในซึ่งเป็นห้องรับแขกขนาดใหญ่
ชั้นล่างโปร่งโล่งต่อเนื่องไปยังห้องทานอาหาร
ด้านหลังมีห้องนอนสำหรับผู้สูงอายุที่เป็นส่วนตัว
ชั้นบนมีส่วนนั่งเล่นซึ่งออกระเบียงได้ มีห้องนอนขนาดกลาง
2 ห้อง และอีก 1 ห้องนอนใหญ่ สำหรับความเป็นส่วนตัว เพราะมีทั้งห้องน้ำขนาดใหญ่ภายใน


>