Home
About Me
Service
homeplan
Portfolio
Contact
ผลงาน : แบบบ้าน HP-08
>
Model:
Contemporary Style
Price:
4,300,000 บาท
ตามแบบ วัสดุมาตรฐาน
Client:
คุณพงษ์สิทธิ์ ( คุณหนุ่ม )
Share:
Project Info:
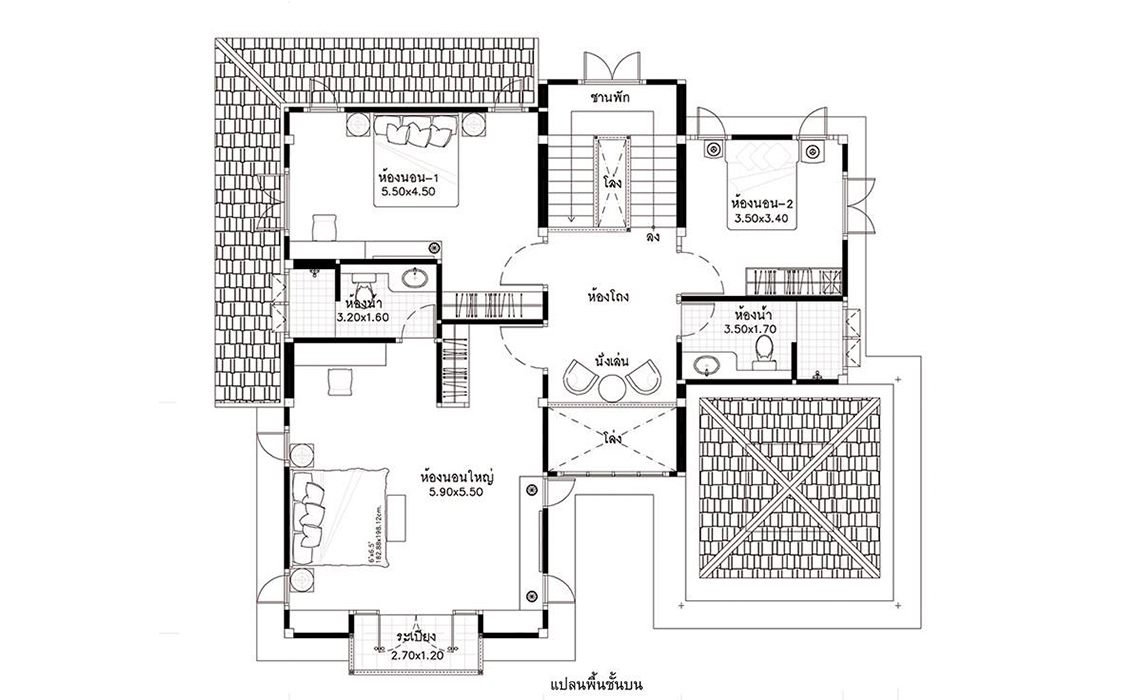
บ้าน 2 ชั้น
3 ห้องนอน 3 ห้องน้ำ
ขนาดที่ดินกว้าง 18.70 ลึก 16.70 เมตร
พื้นที่ใช้สอย 277 ตร.ม.