Home
About Me
Service
homeplan
Portfolio
Contact
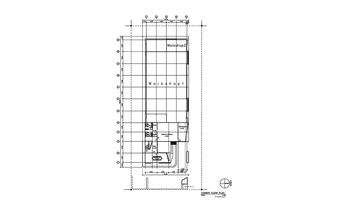
ผลงาน : สำนักงานและโรงงาน ผลิตวัสดุแผ่นความร้อน
>
>
Model:
บริษัท ไทยเฟล็กซ์ อีควิปเม้นท์ จำกัด
Price:
13,390,000 บาท
Client:
คุณธิติพงศ์ ( คุณจุรี )
Share:
Project Info:
พื้นที่ใช้สอย 1,120 ตร.ม.