HOMEPLAN : AC406

>
  • Model: Activity Style
  • Price:
  • Mobile:081-812-6480
  • Tel:02-363-7602-3
Share:

Project Info:

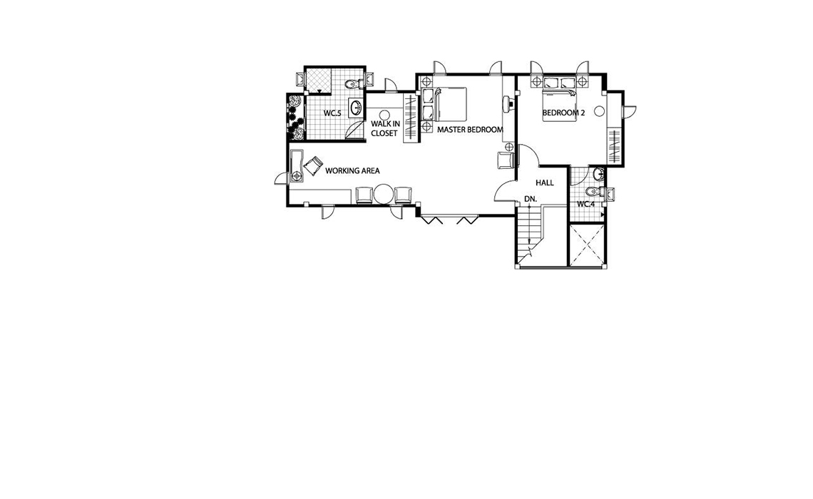
บ้าน 2 ชั้น เล่นระดับ
พื้นที่ใช้สอย 331 ตรม.
ขนาดที่ดิน ก.18 ล.20 เมตร
4ห้องนอน 5 ห้องน้ำ ที่จอดรถ 2 คัน

Related Projects: