>

Project Info:
พื้นที่ใช้สอยโปร่งโล่งแบบ Double Volume
ขนาดพื้นที่ใช้สอยรวมที่จอดรถ 989 ตร.ม.
ขนาดที่ดินความกว้างไม่น้อยกว่า 48 ม.
ความลึกไม่น้อยกว่า 34 ม.
หมายเหตุ:
ขนาดที่ดินความลึกยังไม่รวมพื้นที่ดินสำหรับสระว่ายน้ำ
*ชั้นล่างประกอบด้วยห้องเอนกประสงค์, Family room ,ห้องรับแขก ,ห้องทานอาหาร, ห้องครัว,ห้องคนใช้,
สระว่ายน้ำขนาดใหญ่ ที่จอดรถ 4คัน
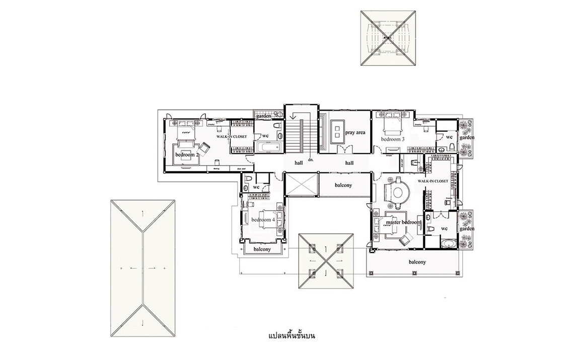
*ชั้นบนโอ่โถงด้วยห้องนอน Master bed room และ 3ห้องนอนขนาดใหญ่พร้อมห้องน้ำชมสวน, ห้องพระ

