>

Project Info:
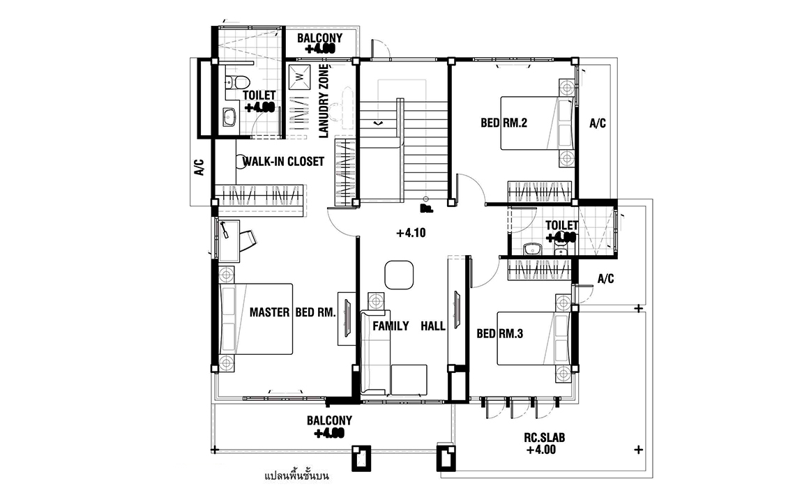
พื้นที่ใช้สอย 284 ตารางเมตร
ขนาดที่ดิน ก.16.00 ล.15.00 เมตร
ขนาดตัวบ้าน ก.12.00 ล.11.00 เมตร
4 ห้องนอน 3 ห้องน้ำ ที่จอดรถ 2 คัน
>

พื้นที่ใช้สอย 284 ตารางเมตร
ขนาดที่ดิน ก.16.00 ล.15.00 เมตร
ขนาดตัวบ้าน ก.12.00 ล.11.00 เมตร
4 ห้องนอน 3 ห้องน้ำ ที่จอดรถ 2 คัน

