HOMEPLAN : TYPE-D

>
  • Model: Contemporary Tropical
  • Style
  • Price:
  • Mobile:081-812-6480
  • Tel:02-363-7602-3
Share:

Project Info:

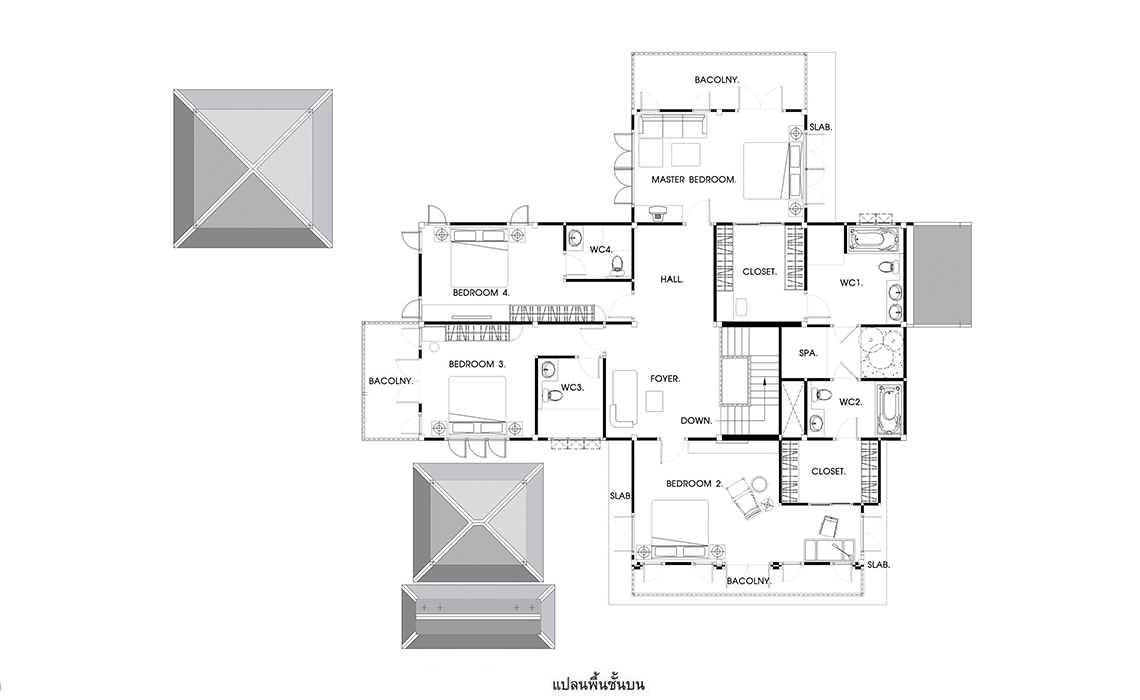
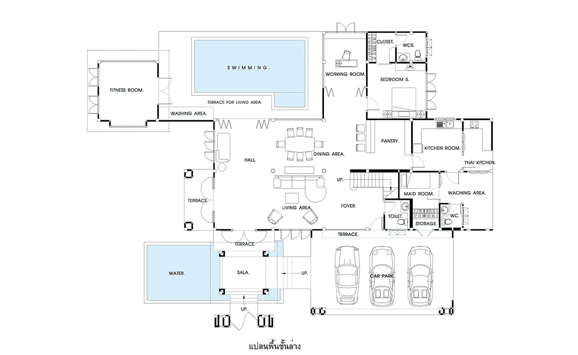
พื้นที่ใช้สอย 650 ตารางเมตร
ขนาดที่ดิน ก.31.00 ล.24.00 เมตร
5 ห้องนอน 6 ห้องน้ำ พร้อมสระว่ายน้ำ ที่จอดรถ 3คัน

Related Projects: