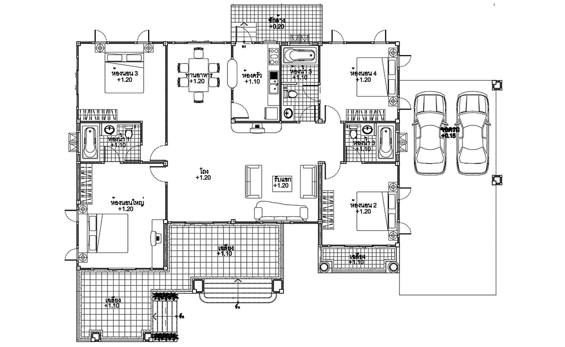
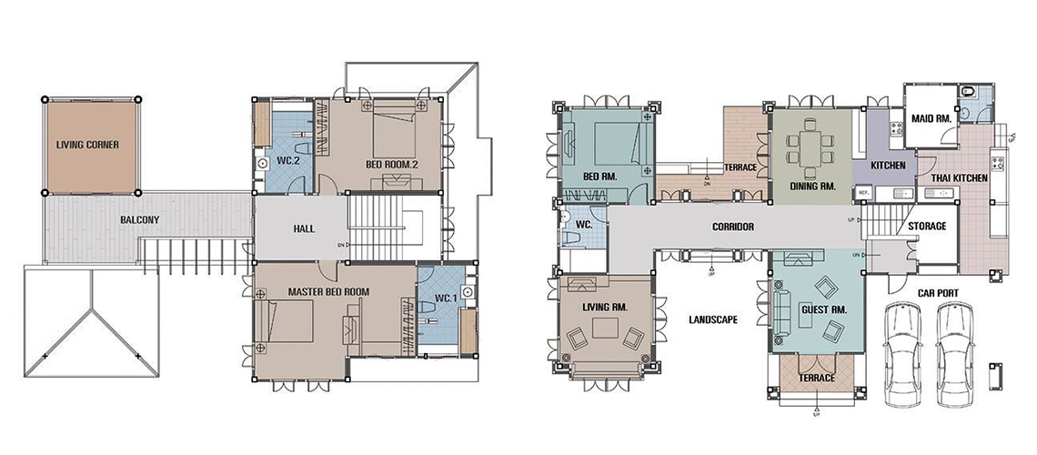
>
Project Info:
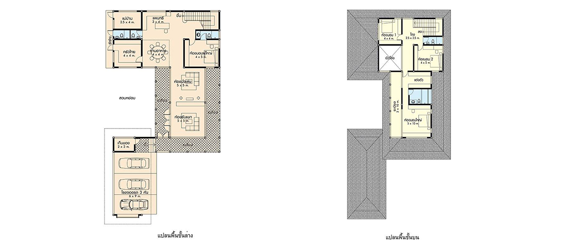
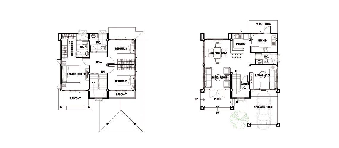
พื้นที่ใช้สอย 278 ตารางเมตร
ขนาดตัวบ้านรวมที่จอดรถ
ก.26.50 ล.15.30 เมตร ไม่รวมซักล้าง
4 ห้องนอน 3 ห้องน้ำ ที่จอดรถ 2 คัน
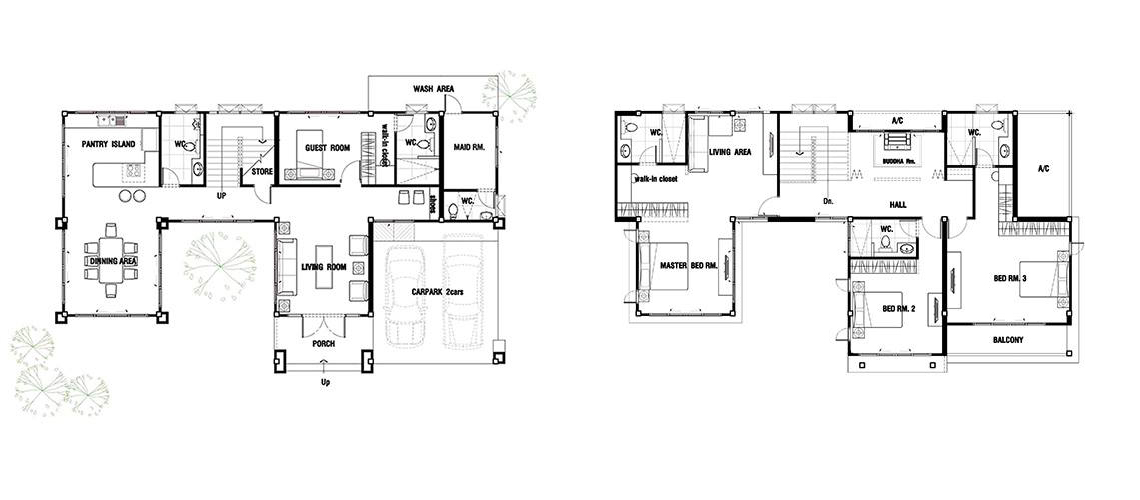
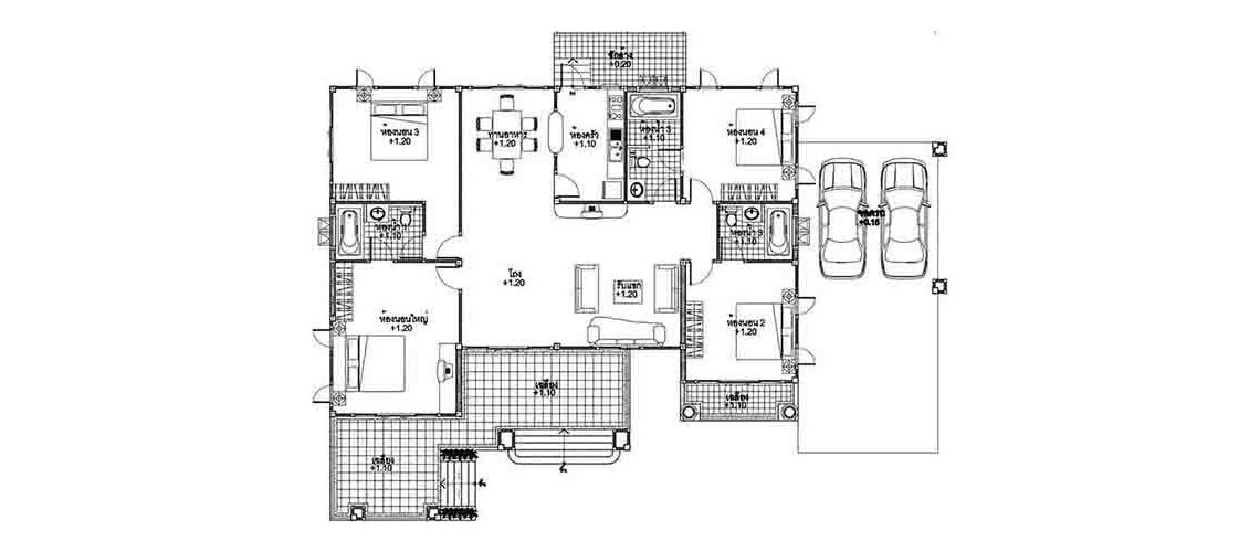
>
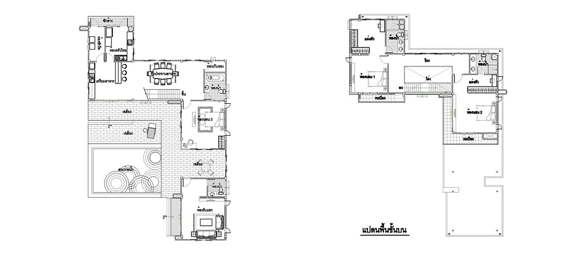
พื้นที่ใช้สอย 278 ตารางเมตร
ขนาดตัวบ้านรวมที่จอดรถ
ก.26.50 ล.15.30 เมตร ไม่รวมซักล้าง
4 ห้องนอน 3 ห้องน้ำ ที่จอดรถ 2 คัน

